


Listing Courtesy of: CENTRAL WEST TENNESSEE / Coldwell Banker Southern Realty / Lee Godfrey
148 Calumet Cove Medina, TN 38355
Active (1 Days)
$389,900 (USD)
MLS #:
2504968
2504968
Lot Size
0.62 acres
0.62 acres
Type
Single-Family Home
Single-Family Home
Year Built
2025
2025
School District
Gibson County Special District
Gibson County Special District
County
Gibson County
Gibson County
Listed By
Lee Godfrey, Coldwell Banker Southern Realty
Source
CENTRAL WEST TENNESSEE
Last checked Oct 18 2025 at 11:42 AM CDT
CENTRAL WEST TENNESSEE
Last checked Oct 18 2025 at 11:42 AM CDT
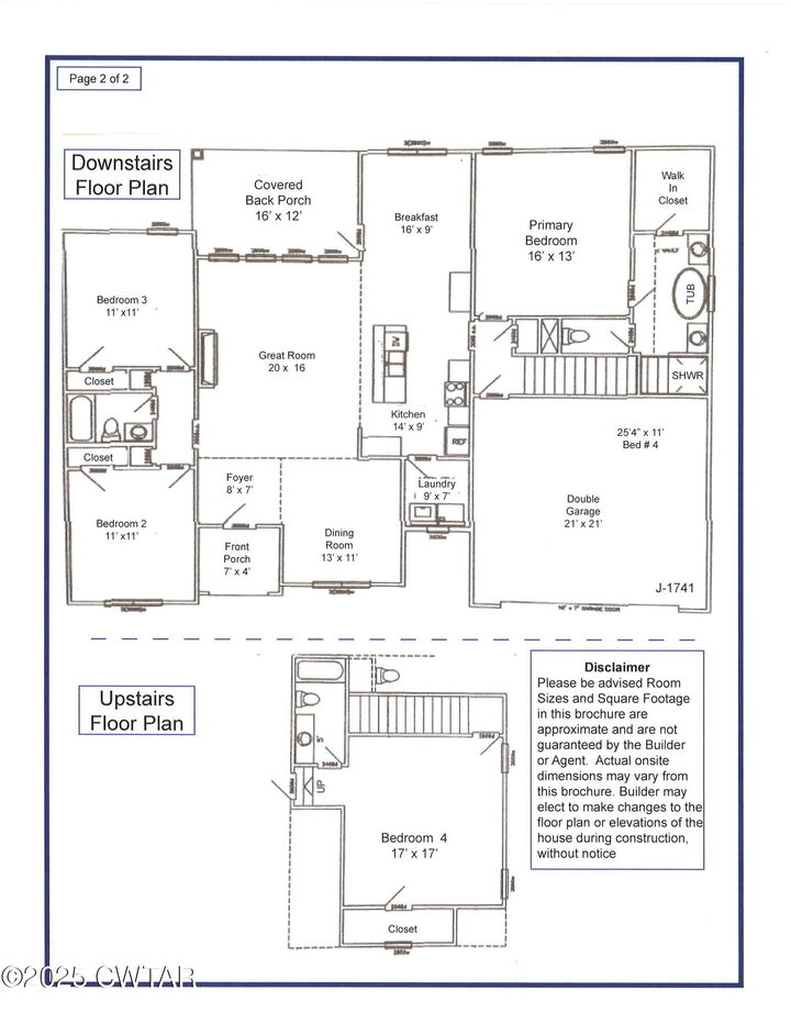
Bathroom Details
- Full Bathrooms: 3
Interior Features
- Ceiling Fan(s)
- Breakfast Bar
- Double Vanity
- Commode Room
- Eat-In Kitchen
- Entrance Foyer
- Granite Counters
- Knocked Down Ceilings
- Laundry: Laundry Room
- Laundry: Main Level
- Laundry: Electric Dryer Hookup
- Open Floorplan
- Primary Downstairs
- Crown Molding
- Soaking Tub
Subdivision
- Steeple Chase
Lot Information
- Wooded
- Cul-De-Sac
- Level
Property Features
- Fireplace: Other
- Foundation: Slab
Heating and Cooling
- Forced Air
- Natural Gas
- Central Air
Homeowners Association Information
- Dues: $150
Flooring
- Carpet
- Luxury Vinyl
- Ceramic Tile
Exterior Features
- Brick
Utility Information
- Utilities: Cable Available, Fiber Optic Available, Sewer Connected, Water Connected, Natural Gas Connected, Underground Utilities
- Sewer: Public Sewer
Garage
- Garage
Parking
- Garage Faces Front
Stories
- 2
Living Area
- 2,288 sqft
Location
Estimated Monthly Mortgage Payment
*Based on Fixed Interest Rate withe a 30 year term, principal and interest only
Listing price
Down payment
%
Interest rate
%Mortgage calculator estimates are provided by Coldwell Banker Real Estate LLC and are intended for information use only. Your payments may be higher or lower and all loans are subject to credit approval.
Disclaimer: Copyright 2025 Central West Tennessee Association of Realtors. All rights reserved. This information is deemed reliable, but not guaranteed. The information being provided is for consumers’ personal, non-commercial use and may not be used for any purpose other than to identify prospective properties consumers may be interested in purchasing. Data last updated 10/18/25 04:42
Description